豊町5丁目土地

5,770万円

埼玉県春日部市豊町5丁目7番25号(地番)

東武野田線「八木崎」駅徒歩20分

東武伊勢崎線「春日部」駅徒歩25分

価格
5,770万円
坪単価
64.96万円(88.82坪)
所在地
埼玉県春日部市豊町5丁目7番25号(地番)
交通

東武野田線八木崎」駅 徒歩20分

東武伊勢崎線春日部」駅 徒歩25分

土地面積(坪数)
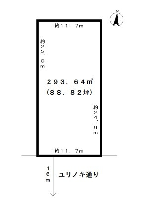
293.64㎡(88.82坪)
建ぺい率 / 容積率
60% / 200%

セールスポイント

◎国道4号と16号を結ぶユリノキ通りに面した整形地。交通量も多く付近にはスーパー・コンビニ・ドラッグストア・飲食店があり、事業用に適しています。

基本情報

販売区画数
-
総区画数
-
土地面積(坪数)
293.64㎡(88.82坪)
坪単価
64.96万円
私道負担面積
割合
-
セットバック
建ぺい率 /
容積率
60% / 200%
高圧線下面積
-
傾斜地部分面積
-
路地状敷地
-
地目
宅地
地勢
-
造成工事
完了予定
-
土地権利
所有権
建築条件
-
都市計画
市街化区域
用途地域
第二種住居
接道状況
一方(南 公道 16.0m 間口 11.7m)
国土法届出要否
不要
最適用途
事業用地
その他
法令上の制限
-
取引態様
一般媒介
現況
-
引渡条件
-
引渡時期
相談
開発許可番号
-
取引条件の
有効期限
2026年05月26日

設備条件

設備条件
  • 都市ガス / 公営水道 / 公共下水
設備(その他)
    -

その他

物件番号
98807076
管理コード
-
情報更新日
2026年05月14日
次回更新予定日
2026年05月26日
取扱会社
  • 株式会社 カドヤ不動産
  • 埼玉県春日部市中央1丁目2-2 
  • TEL:048-761-6671
  • 国土交通大臣 (16) 第177号
  • (公社)埼玉県宅地建物取引業協会

支払いシミュレーション

月々の支払額

※実際の金額と異なる場合があります。

購入希望物件価格
万円
頭金
万円
金利
%
返済額(ボーナス1回分)
万円
返済期間

※ボーナスは自動で年2回分で計算されます。

よく見られている物件

  1. 豊町5丁目土地

    春日部市豊町5丁目

    - (293.64㎡)

    5,770万円

豊町5丁目土地

豊町5丁目土地

5,770万円

-(293.64㎡)

お気軽にお問い合わせください

無料お問い合わせ

株式会社 カドヤ不動産

048-761-6671

10:00~17:00(当面の間)

(休:毎週水曜日)