豊町5丁目土地

5,770万円

埼玉県春日部市豊町5丁目7番25号(地番)

東武野田線「八木崎」駅徒歩20分

東武伊勢崎線「春日部」駅徒歩25分

価格
5,770万円
土地面積(坪数)
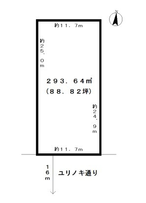
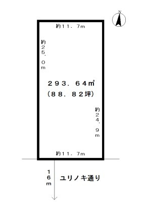
293.64㎡(88.82坪)
所在地
埼玉県春日部市豊町5丁目7番25号(地番)
築年
-(-)
駐車
-
交通

東武野田線八木崎」駅 徒歩20分

東武伊勢崎線春日部」駅 徒歩25分

豊町5丁目土地の基本情報

物件名
豊町5丁目土地
価格
5,770万円
土地面積
293.64㎡
築年月
-(-)
総区画数
-
所在地
埼玉県春日部市豊町5丁目7番25号(地番)
交通

東武野田線八木崎」駅 徒歩20分

東武伊勢崎線春日部」駅 徒歩25分

豊町5丁目土地の詳細情報

設備条件
設備(その他)
    -
駐車場/月額
-/-
土地権利
所有権
国土法届出
不要
用途地域
第二種住居
区画数
- / -
管理形態
-
管理員の勤務形態
-
管理会社
-
取引態様
一般媒介
引渡し
相談
開発許可番号
-

豊町5丁目土地で募集中の物件

  1. 88.82坪 (293.64㎡)

    5,770万円(64.96万円/坪)

よく見られている物件

  1. 春日部市豊町5丁目

    - (293.64㎡)

    5,770万円

豊町5丁目土地

お気軽にお問い合わせください

無料お問い合わせ

株式会社 カドヤ不動産

048-761-6671

10:00~17:00(当面の間)

(休:毎週水曜日)